42.38 Acres North Towne Trails, De Forest, WI 53532
42.38 Acres North Towne Trails, De Forest, WI 53532
Loading...
Commercial property for sale
- Description
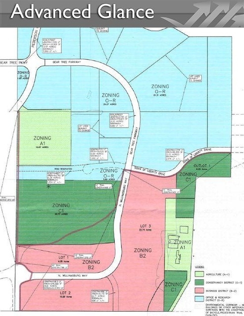
- Parcels are zoned B-2 Commercial zoning (42.38 acres). The Parcels are also located in a Tax Incremental District with 21 years remaining - the Village of Deforest will do all infrastructure improvements of approx $6-7 million. This enhancement to the "South Gateway" to the Deforest Community will feature a stop light intersection added when the first road is constructed off of Hwy 19, aesthetic improvements along Hwy 19, and an internal trailsystem. This TIF District is designed for high-value office, research & development, and related uses. Seller is willing to sell the parcels individually or together. Property is located just East of the corner of Hwy 51 & Hwy 19 and only a mile from the I-39/Hwy 19 interchange. This has been the fastest growing area of Dane County for the past 10 years. Bordering Hwy 51 & 19 there are two newly built health clinics, UW Hospital Clinic & Meriter Hospital Clinic, which will bring in a lot of traffic. The Village of Deforest sits just north of the City of Madison between the Village of Waunakee to the west and the City of Sun Prairie to the east. Hwy 51 from Madison is under a complete renovation into a 4-lane freeway to the north side of DeForest, which is to be completed by 2014. LIST PRICE IS $4,296,000 W/ AN OPENING BID OF $2,375,000 IF NO OFFER RECEIVED PRIOR TO AUCTION ON 5/18/2013. Advanced Glance. Seller will disclose Reserve. Call for details. "Buyer's Fee" equal to 2% or $2,000, whichever is greater to be added to high bid to determine final sale price. Nonrefundable EM of 5% of the sellers reserve due from high bidder on day of auction/offer. Cash closing, no contingencies. Offers are subject to Seller
- Map Locations
- Contact info
-
Wade T Micoley888-662-1020 [Office]Micoley & Company
- Note
-
Details Info about this row that located on 42.38 Acres North Towne Trails, De Forest, WI 53532 was got from trusty sources, but HousesForSaleList.com can't guarantee that details about listing price, status, facts, images and owner are correct, because this listing can be changed or removed from market without notice. If You need to receive additional details about this property try to ask directly listing agent or owned.
If you see any error or mismatches on this page – click here.
- Property Details
-
Property Type: Land Use Types: Industrial, Office Status: Available Price: $ 56,040 +/Acre Lot Size: 42.380 Acres MSA: Madison Zoning: B2 Terms: Cash to Seller Added: 01/26/2013 Last Update: 06/16/2013
